Upper Terr - Unit 8
Unit 8 has the lower two levels of a 1975 Joseph Esherick building on Mt Olympus in San Francisco.
It had an awkward layout in parts, so we needed to figure out a way to give the place a more unified feel. We had two levels to sort out, reroute and redo.
Photography: Open Homes Photography
1st Level - Existing and demo floor plan
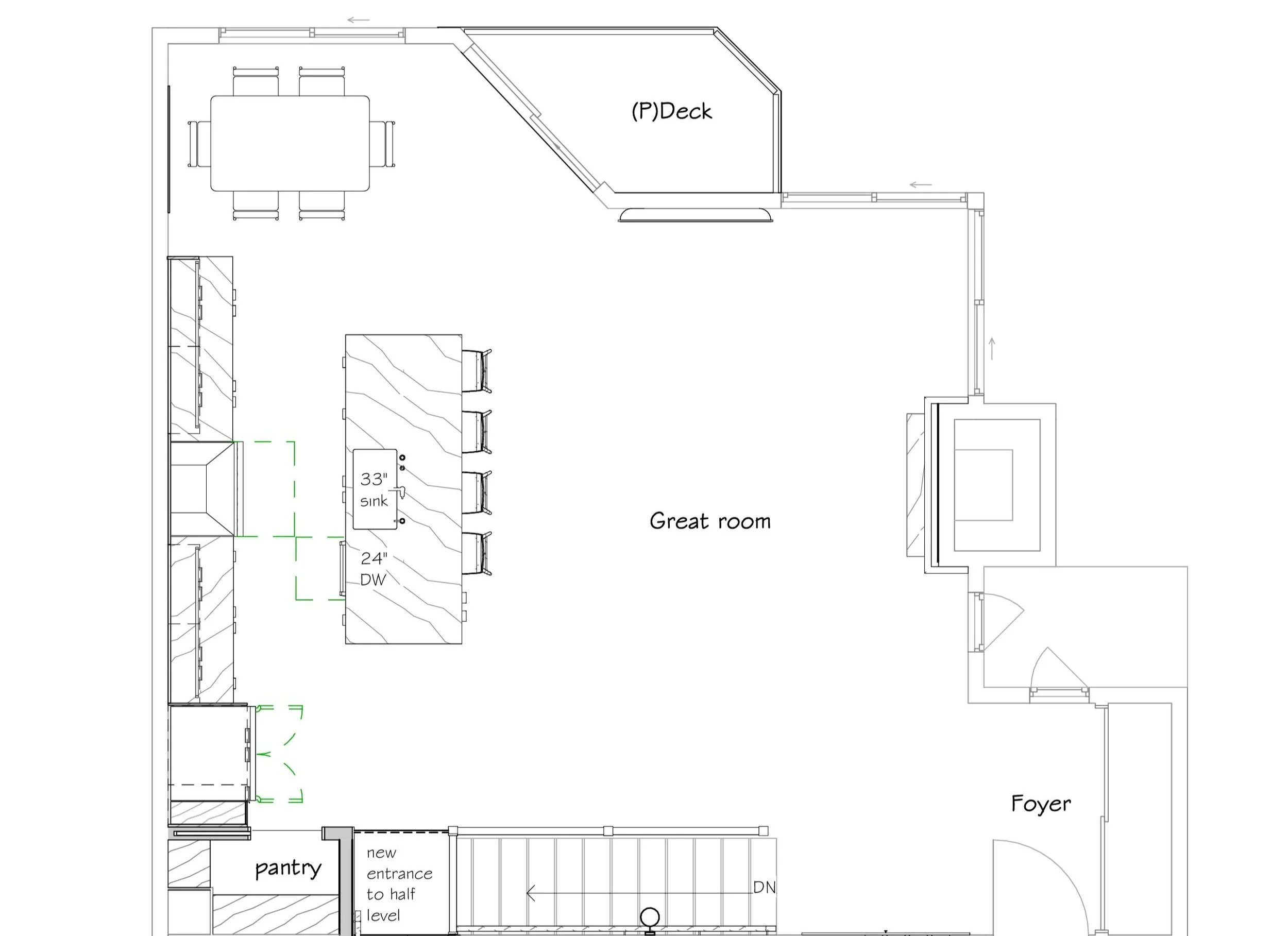
1st Level - Proposed floor plan
2nd and Half Level - Existing and demo floor plan
2nd and Half Level - Proposed floor plan
Great Room
BEFORE
AFTER
Bath 1
BEFORE
AFTER
Bed & Bath 2
BEFORE
AFTER
